

点击蓝字关注我们
金蚂蚁设计

玉龙湖畔
硬装设计:蚂蚁设计组
软装设计:素艺软装组
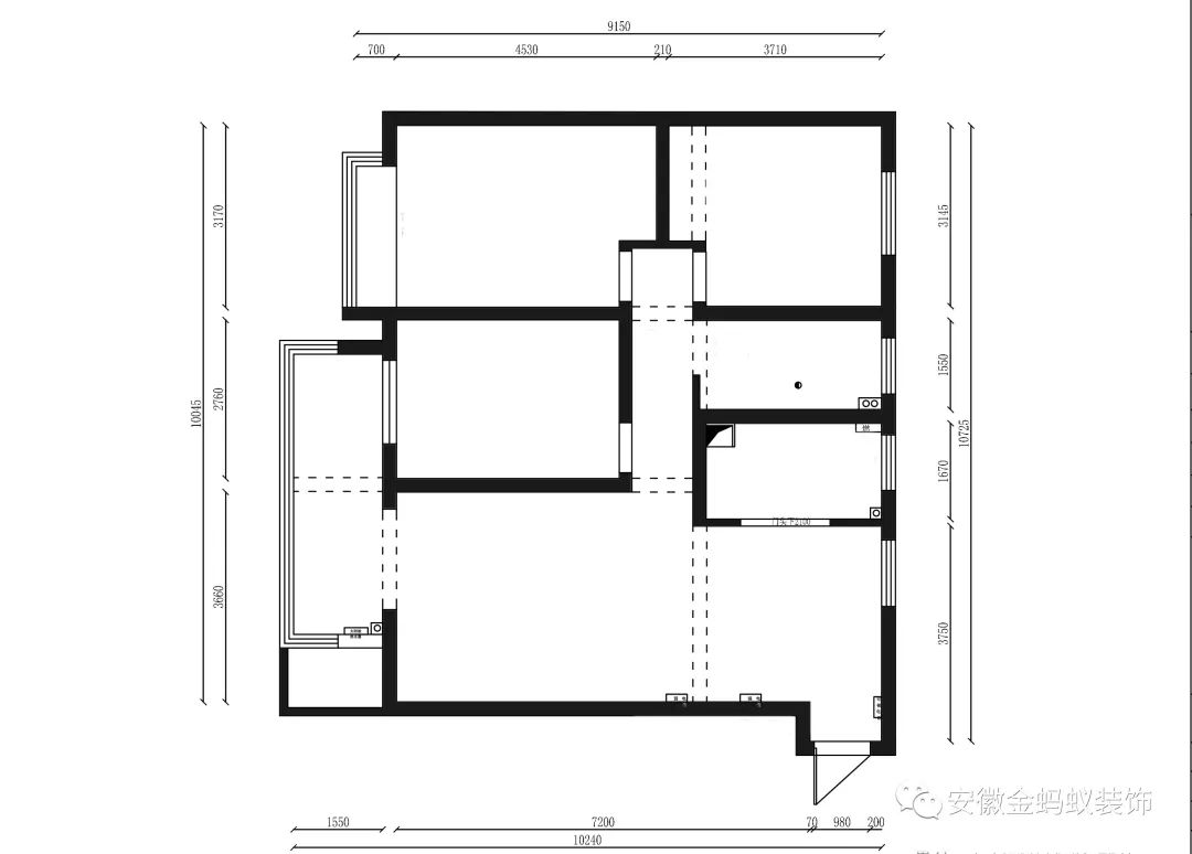
原始结构图

设计风格:现代简约
房型结构:三室一厅一厨一卫
平面效果图

设计思路:
1.进门处的餐厅与客厅处,通过放置冰箱与屏风将两者加以区分,使房间整体结构更加明朗清晰。
2.将主卧与阳台连通处的墙体进行部分拆除,使主卧的采光量与通风效果最大化,宜居宜人。
3.将卫生间整体布局划分为洗浴区、卫生区、洗漱区,分区清晰,满足生活需求。
金蚂蚁设计
进门处

鞋柜的设置完美利用了房型结构,做到了空间利用的合理化,同时方便出行起居。

厨餐厅的空间形成了一个完美的规则结构,并与其他空间相连接。软装的设计简洁有力,将房间本身的优点衬托的淋漓尽致。
走道

走道尽头的空间与电视背景墙的颜色保持一致,干净明亮。长度适中且开阔,方便生活,也使房间更富层次感与空间感。
客厅

白色屏风将整个客餐厅空间一分为二,使整个休闲区域看起来不至于过分空旷,达到了很好的视觉效果。

客厅软装布置上以白色为主,辅以明黄等亮色,使客厅看起来通透简洁。桌椅、挂画的悬挂摆放也符合房型结构,视觉效果与实用效果极佳。
洗漱区

选用白色瓷砖作为卫生洗浴区的主材,不仅符合该生活功能区的特点,而且白色与整个现代风格的简约要求相得益彰。
阳台

阳台面积宽阔充足,视野极佳。不仅可以充分享受到阳光的温暖,也可以足不出户便可将龙子湖美景尽收眼底。

金蚂蚁设计

往期推荐

【金蚂蚁装饰】仙林苑——欧式风格

【金蚂蚁装饰】绿地花都——美式风格

【金蚂蚁装饰】金大地——现代简约

金蚂蚁装饰[家装、工装设计施工]--我们的设计师可以说是杂家,他们懂建筑,会玩空间,擅长收纳,精通定制,了解材料,熟悉渠道,更善于发现生活之美。我们的工人都是自2014年金蚂蚁到蚌埠以来筛选下来的,经过5年的时间早已和公司合二为一。有着共同的目标,让每一个案子都能达到百分之百的还原比例。我们大部分的材料都是根据设计师案子定制的。金蚂蚁要让每个案子都以整洁,舒适,环保,宜居的样子放心交到业主手里。
微信号

觉得内容还不错的话,给我点个“在看”呗
